-Objekt Sozialer Wohnungsbau Aschenbrenner Straße / München - 2. Bauabschnitt des Pilotprojekts Stadterneuerung Hasenbergl
o
-Bauherr GWG - Gemeinnützige Wohnstätten und Siedlungsgesellschaft mbH, München
o
-Architekten A+S, Atelier für Architektur und Stadtplanung,
Prof. A.- Christin Scheiblauer, München
Prof. Nikolaus Neuleitner, Regensburg
Feli + Jonas, München; mit Evi Selmair
Landschaftsarchitektin: Gabriella Zaharias
o
-Aufgabe Der städtebauliche Ansatz ist komplexer als an der Kienestraße, da hier verschiedene Richtungs-systeme aufeinandertreffen bzw. sich überlagern: Das orthogonale System der Bestandszeilen wird fortgeführt durch Anbauten (Geschoßwohnungen), der Kreisbogen der Aschenbrennerstraße aufgenommen durch niedrigere Zwischenbauten (Maisonetten bzw. Stadthäuser). Diese schließen die Höfe nach Norden ab und gewährleisten den Lärmschutz.
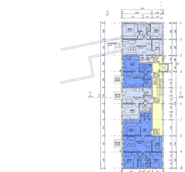
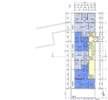
Gebäudetyp: 64 Wohnungen im sozialen Wohnungsbau auf ehemaligem Garagenhof
Die Niveauunterschiede in den Höfen (EG im Bestand ½ Geschoß erhöht) werden durch Nebengebäude, Treppenanlagen und Rampen ausgeglichen. Konstruktion: Ziegelbauweise mit Wärmedämmverbundsystem. Das Terrassen-geschoß der Westfassade besteht aus einer Holzständerkonstruktion mit Plattenverkleidung.
Freiraum: Die Verzahnung mit den Bestandbauten erzwingt von Anfang an einen Umbau der Höfe: Vor den Neubauten entstehen baumbestandene Plätze mit gedeckten Sitzbereichen.
o
-Projektdaten Baukosten ca. DM 10.000.000,- (KG 300+400)
Bruttorauminhalt: ca. 20.000 cbm
Wohnfläche: ca. 4.150 m²
Fertigstellung 2002 / 2003
o
 
-Aschenbrenner Straße / München Modellfoto Neubau von OstenInnenbereicheNeubau von WestenNeubau von WestenAnsichtenWegebeziehungenGrundriss EGGrundriss 1.OGGrundriss DGLärmschutzgutachtenFenster schliessen-